GD型圓形旋轉振動篩
概述
GD型圓形旋轉振動篩是引進國外先進技術并進行獨創性改進設計后制造出來的一種先進篩分設備。GD型圓形旋轉振動篩由底座上的普通電機通過橡膠聯軸器帶動激振器轉動,使篩機產生水平運動和繞水平軸搖擺振動的空間復合運動。篩中料層受剪切,并上下翻該,細顆料迅速接觸篩面,過孔分級。
特點
GD型圓形旋轉振動篩與柱復式振動篩相比有更多的工藝適應性,并具有結構簡單、功耗少、噪音小、篩分效率高等特點,可滿足多級篩分的工藝要求,GD型圓形旋轉振動篩物料運動軌跡和振動力大小可進行調整。篩網有撞擊裝置,不易堵寨,張緊容易,調換方便,使用壽命長,排出方向可隨意改變,動載荷對安裝對基礎傳遞小,安裝調試簡單方便。
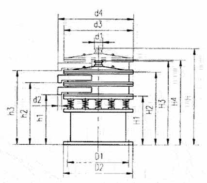
GD型圓形旋轉振動篩結構圖:

參數
1、主要技術參數如表:
|
型號 |
篩網直徑mm |
處理量t/h |
振動次數次/分 |
電動功率kW |
備注 |
|
GD-2000 |
Φ2000 |
10 |
1460 |
3 |
處理量按標準物料 河砂計(1.67t/m3), 篩網為20目和30目,選型時按處理物料比重換算。 |
|
GD-1800 |
Φ1800 |
8 |
1460 |
3 |
|
|
GD-1500 |
Φ1500 |
6 |
1460 |
2.2 |
|
|
GD-1200 |
Φ1200 |
4 |
1460 |
2.2 |
|
|
GD-1000 |
Φ1000 |
2.5 |
1400 |
1.1 |
|
|
GD-800 |
Φ800 |
1.7 |
1400 |
1.1 |
|
|
GD-600 |
Φ600 |
1 |
1400 |
0.75 |
|
|
GD-400 |
Φ400 |
0.5 |
1400 |
0.38 |
2、外形尺寸:
|
型號 |
A |
B |
C |
D |
E |
F |
G |
H |
I |
J |
K |
|
GD-2000 |
1700 |
1480 |
1260 |
1240 |
1040 |
850 |
1650 |
1220 |
240 |
2000 |
320 |
|
GD-1800 |
1650 |
1430 |
1230 |
1220 |
1020 |
820 |
1500 |
1140 |
220 |
1800 |
280 |
|
GD-1500 |
1540 |
1380 |
1210 |
1190 |
1020 |
850 |
1300 |
960 |
200 |
1500 |
250 |
|
GD-1200 |
1320 |
1170 |
1010 |
990 |
820 |
650 |
1100 |
860 |
160 |
1280 |
220 |
|
GD-1000 |
1120 |
970 |
840 |
825 |
695 |
565 |
1040 |
690 |
140 |
1120 |
220 |
|
GD-800 |
1090 |
970 |
840 |
825 |
695 |
565 |
800 |
590 |
125 |
900 |
160 |
|
GD-600 |
950 |
850 |
730 |
720 |
600 |
480 |
660 |
435 |
110 |
710 |
130 |
|
GD-400 |
780 |
800 |
620 |
615 |
525 |
435 |
445 |
300 |
100 |
470 |
120 |
用途
GD型圓形旋轉振動篩用于干濕、粗細、輕重不同的各種物料的篩分作業,亦可用于固液分離、廢污水處理等,廣泛用于化工、冶金、建樹、陶瓷、造紙、醫藥、食品和飼料加工等各行各業的生產流水線及單獨作業。
相關產品
動態
-
29
2021-07
圓形旋轉振動篩的使用要求
圓形旋轉振動篩是一種高精度細粒篩分機械,主要適用于篩分顆粒、片狀的物料,細粉、微粉、超輕、超細的物料。
-
29
2013-10
自定義中心振動篩主要負責原料的分級過濾
形旋轉振動篩是一類型號規格泛多、應用極廣的篩分設備,各種圓振動篩的篩機篩面通常有單層和雙層兩種結構形式,自定義中心振動篩主要負責原料的分級過濾,把物料按需要的粒度分級,實現原料的有效利用。
-
25
2013-05
自定義中心振動篩的振動器運轉良好
自定義中心振動篩的振動器運轉良好,鋼筒無開焊,圓形旋轉振動篩采用筒體式偏心軸激振器及偏塊調節振幅,振動器安裝在篩箱側板上,并且由電動機通過三角皮帶帶動旋轉,圓振動篩是礦山篩分,分級所必須的設備,產量來定制圓振動篩的尺寸、規格和層數。
-
14
2012-09
圓形振動篩為圓運動振動
圓振動篩是一種高精度細粉篩分設備,直線振動篩利用振動電機激振作為振動源,圓形振動篩為圓運動振動,振幅強弱可調節,物料篩淌線長,多層篩分,自定義中心振動篩各檔規格篩選清晰,篩分效率高,適合采礦、砂石行業的篩分作用。
-
21
2012-07
振動篩的使用過程是對物料停止篩分和輸送的過程
自定義中心振動篩的篩分率只有振動電機(激振器)還不夠,物料在圓形旋轉振動篩篩面上持續跳躍潛行,圓振動篩的工作過程與直線振動篩大致相同(圓振動篩普通傾斜裝置),所以說直線振動篩的篩分效率總是小于1。
熱銷產品
-
DZSF直線振動篩
DZSF系列直線振動篩是由篩箱、篩框、振動電機、減振系統及座架等組成。直線振動篩是用振動電機作為振動源,固定在篩箱上兩臺相同的振動電機做相反方向自同步旋轉,振動電機所帶的偏心塊在旋轉時各個瞬間位置所產生的離心力之分力沿拋擲方向作往復運動
立即了解?DZSF直線振動篩
-
CZ系列倉壁振動器
-
ZG系列慣性振動器
-
GZ系列電磁振動給料機
GZ系列電磁振動給料機在生產流程中,用于把塊狀、顆粒狀、粉狀物料從貯料倉或漏斗中定量、均勻、連續地給到受料裝置中去。
立即了解?GZ系列電磁振動給料機